New Homes Conway News
New Homes in Conway South Carolina
(843) 940-3609
Conway new home community news
CONWAY
New Home
Community
NEWS
Conway new home community news

News Date: 03/31/2025

News Title: Phase 1 of the new single-family home community of Kingston Preserve in Conway to have the project layout and street names approved
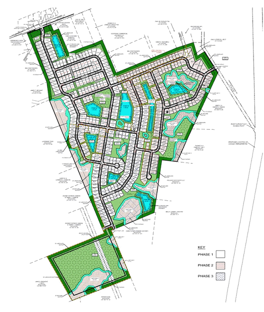
The new home community of Kingston Preserve is located slightly west of downtown Conway located at the corner of Highway 378 and Hemingway Chapel Road. Kingston Preserve is located close to another new subdivision that has recently been proposed - Hemingway Chapel Landing (D. R. Horton).

Kingston Preserve will feature a total of 407 single family homes on an approximate 187.88 acre parcel of land and will be developed as a conservation subdivision. Kingston Preserve will be the second conservation subdivision in Conway – the first conservation subdivision in Conway being the Collins Jollie master planned community (Westwood Reserve. Kingston Oaks, Maple Grove, etc).

With a conservation subdivision design, open space will need to be preserved, with a minimum of 30% of the net buildable area of the property needing to be left undeveloped and used for both conservation of the natural environment and human recreation. Within the new home community of Kingston Preserve, being developed as a conservation subdivision, over 44 acres of land will be preserved for ecological and recreational purposes in perpetuity.

On April 3, 2025, Conway Planning and Development will be reviewing a request to approve the project layout and street names for the internal streets for the new home community of Kingston Preserve.

Back in October of 2023, the master plan for Kingston Preserve (previously named Pelican Pointe) was originally submitted for review.

In February of 2024, a design modification was granted by the Conway Planning Commission to utilize an emergency access easement and road for Phase 1 of Kingston Preserve and to allow for the project to be developed in 3 phases.

In April of 2024 the first full set of preliminary plans and plats were submitted for review.

Currently the most recent revisions are still being reviewed by the Conway Technical Review Committee.

The first phase of Kingston Preserve is proposing 134 single family lots.

The DESCO Investment Company purchased this property in July of 2024. DESCO is a North Carolina-based land development firm that purchases, entitles, develops, and subdivides real estate into buildable lots for some of the nation's largest homebuilders.

No timing for the development of Kingston Preserve has been announced and no builder has been identified for Kingston Preserve.

Homes for sale In Kingston Preserve


Kingston Preserve in Conway

Kingston Preserve
Conceptual Plan
Data Courtesy Conway City Council
Conceptual Plan for Kingston Preserve in Conway - data courtesy of Conway City Council





Vsansant Realty Group - Full service real estate brokerage serving Myrtle Beach.
(843) 940-3609